Espace propriétaire
fr

Votre recherche

Chevaigné (35250)

3 pièces - 68,65 m²

NOUVEAUTE SOQUET IMMOBILIER - CHEVAIGNE - APPARTEMENT T3

285 000 €
Ref : V24602
A propos de ce bien

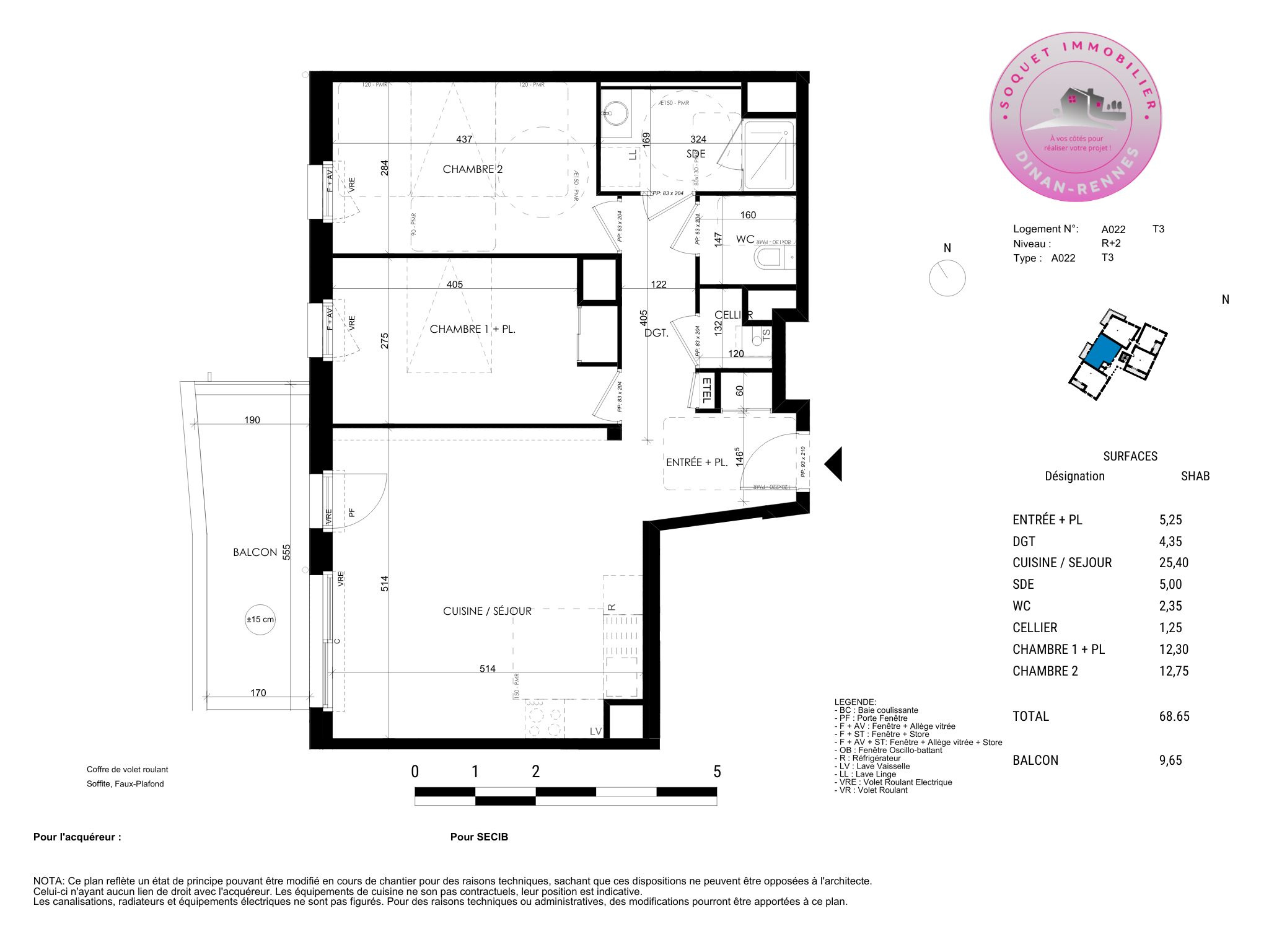
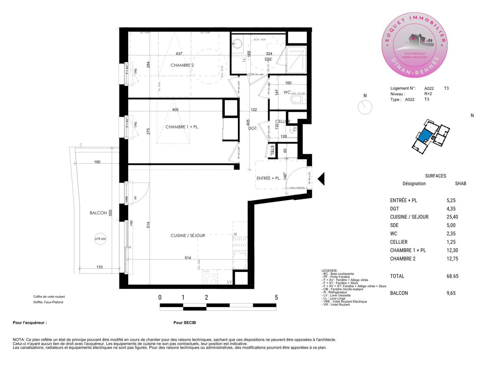
NOUVEAUTE SOQUET IMMOBILIER - CHEVAIGNE - APPARTEMENT T3 Dans un immeuble de 2024 avec ascenseur, Venez découvrir cet appartement type 3 de 68,65 m², se composant d'une pièce de vie donnant sur un balcon de 9,65m2, de deux chambres, une salle de douche, cellier et un wc. Un parking complète cet ensemble. Frais de notaires réduits Située à proximité directe de Betton et de Rennes, on apprécie à Chevaigné la proximité du canal d'Ille et Rance, une voie d'eau bucolique bordée d'arbres, de champs et doté d'un chemin de halage. La commune est très prisée pour sa qualité de vie et son dynamisme renommé : le centre bourg de Chevaigné, ses écoles, ses commerces, et la halte SNCF qui dessert le centre-ville rennais en 17 minutes. L'agence immobilière SOQUET IMMOBILIER est idéale pour acheter ou vendre une maison/appartement en Bretagne. Spécialisée sur les secteurs de DINAN et RENNES, elle diffuse quotidiennement ses annonces immobilières afin de faciliter la vente de votre maison/appartement et de vous proposer le logement de vos rêves. - Charges divers :

Descriptif de ce bien
Général
Code postal 35250
Surface loi Carrez (m²) 68,65 m²
Nombre de chambre(s) 2
Nombre de pièces 3
Etage 1
Détails
Nb de salle d'eau 1
Mode de chauffage Gaz
Type de chauffage Autre
Format de chauffage Individuel
Composition
Rez de chaussée
entrée 6,40 m²

pièce de vie: cuisi/salon/séj 24,75 m²

cellier 2,40 m²

toilettes 2,65 m²

terrasse 28,75 m²

Financier
Prix de vente 285 000 €
Les honoraires d'agence seront intégralement à la charge du vendeur  
Energie
DPE GES
Autour du bien
  • Commerces et santé
  • Loisirs
  • Ecoles
  • Transports
  • Pratique
Contacter pour ce bien
L'agence
Téléphone 02 96 86 20 30
Adresse
59 Rue de Brest 22100 Dinan

* Champ obligatoire

Les informations recueillies sur ce formulaire sont enregistrées dans un fichier informatisé par La Boite Immo agissant comme Sous-traitant du traitement pour la gestion de la clientèle/prospects de l'Agence / du Réseau qui reste Responsable du Traitement de vos Données personnelles. La base légale du traitement repose sur l'intérêt légitime de l'Agence / du Réseau. Elles sont conservées jusqu'à demande de suppression et sont destinées à l'Agence / au Réseau. Conformément à la loi « informatique et libertés », vous disposez des droits d’accès, de rectification, d’effacement, d’opposition, de limitation et de portabilité de vos données. Vous pouvez retirer votre consentement à tout moment en contactant directement l’Agence / Le Réseau. Consultez le site https://cnil.fr/fr pour plus d’informations sur vos droits. Si vous estimez, après avoir contacté l'Agence / le Réseau, que vos droits « Informatique et Libertés » ne sont pas respectés, vous pouvez adresser une réclamation à la CNIL. Nous vous informons de l’existence de la liste d'opposition au démarchage téléphonique « Bloctel », sur laquelle vous pouvez vous inscrire ici : https://www.bloctel.gouv.fr Dans le cadre de la protection des Données personnelles, nous vous invitons à ne pas inscrire de Données sensibles dans le champ de saisie libre.
Ce site est protégé par reCAPTCHA, les Politiques de Confidentialité et les Conditions d'Utilisation de Google s'appliquent.

Découvrir nos outils