Espace propriétaire
fr

Votre recherche

Rennes (35000)

4 pièces - 114 m²

A vendre appartement standing Rennes

775 000 €
Ref : V2431131F
A propos de ce bien

A VENDRE - SOQUET IMMOBILIER - APPARTEMENT STANDING - RENNES Thabor- Jeanne d'arc FRAIS DE NOATIRE REDUIT

A vendre appartement Soquet immobilier Rennes Appartement de standing à Rennes Thabor- Jeanne d'arc

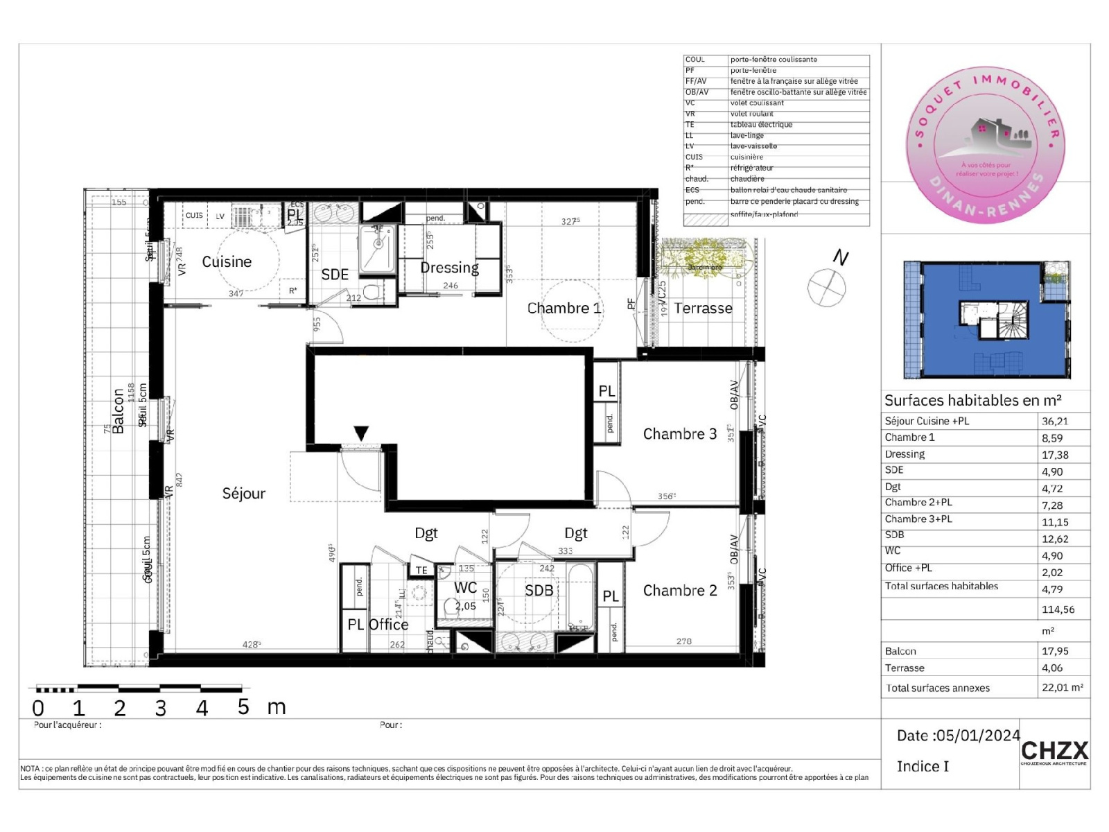
Disponible immédiatement ! Dans une résidence récente de 2024. Venez découvrir cet appartement NEUF de 115m² avec une TERRASSE de 22m² exposé sud-ouest. Vous serez conquis par son agencement et ces prestations. Séjour cuisine donnant sur la terrasse, 3 grandes chambres avec rangement dont une suite parentale avec salle de douche et WC. Une salle de bains et un cellier. Un stationnement vient compléter cet ensemble.

Vous est proposé par l'Agence SOQUET IMMOBILIER. L'agence immobilière SOQUET IMMOBILIER est idéale pour acheter ou vendre un appartement/une maison en Bretagne. Spécialisée dans la vente de maisons/appartements à DINAN, RENNES et SAINT MALO, elle diffuse quotidiennement ses annonces immobilières afin de faciliter la vente de votre maison et de vous proposer le logement de vos rêves. Les informations sur les risques auxquels ce bien est exposé sont disponibles sur le site Géorisques : www.georisques.gouv.fr -

Descriptif de ce bien
Général
Code postal 35000
Surface loi Carrez (m²) 114 m²
Nombre de chambre(s) 3
Nombre de pièces 4
Etage 3
Ascenseur OUI
Détails
Nb de salle de bains 1
Nb de salle d'eau 1
Mode de chauffage Gaz
Type de chauffage Autre
Format de chauffage Individuel
Balcon OUI
Terrasse OUI
Année de construction 2024
Composition
Rez de chaussée
séjour 36,21 m²

cuisine 8,59 m²

dressing 4,90 m²

dégagement 7,28 m²

salle de bains 4,90 m²

toilettes 2,02 m²

office 4,79 m²

balcon 17,95 m²

terrasse 4,06 m²

Financier
Prix de vente 775 000 €
Les honoraires d'agence seront intégralement à la charge du vendeur  
Energie
DPE GES
Copropriété
Copropriété OUI
nombre de lots 7
Autour du bien
  • Commerces et santé
  • Loisirs
  • Ecoles
  • Transports
  • Pratique
Contacter pour ce bien
L'agence
Téléphone 02 96 86 20 30
Adresse
59 Rue de Brest 22100 Dinan

* Champ obligatoire

Les informations recueillies sur ce formulaire sont enregistrées dans un fichier informatisé par La Boite Immo agissant comme Sous-traitant du traitement pour la gestion de la clientèle/prospects de l'Agence / du Réseau qui reste Responsable du Traitement de vos Données personnelles. La base légale du traitement repose sur l'intérêt légitime de l'Agence / du Réseau. Elles sont conservées jusqu'à demande de suppression et sont destinées à l'Agence / au Réseau. Conformément à la loi « informatique et libertés », vous disposez des droits d’accès, de rectification, d’effacement, d’opposition, de limitation et de portabilité de vos données. Vous pouvez retirer votre consentement à tout moment en contactant directement l’Agence / Le Réseau. Consultez le site https://cnil.fr/fr pour plus d’informations sur vos droits. Si vous estimez, après avoir contacté l'Agence / le Réseau, que vos droits « Informatique et Libertés » ne sont pas respectés, vous pouvez adresser une réclamation à la CNIL. Nous vous informons de l’existence de la liste d'opposition au démarchage téléphonique « Bloctel », sur laquelle vous pouvez vous inscrire ici : https://www.bloctel.gouv.fr Dans le cadre de la protection des Données personnelles, nous vous invitons à ne pas inscrire de Données sensibles dans le champ de saisie libre.
Ce site est protégé par reCAPTCHA, les Politiques de Confidentialité et les Conditions d'Utilisation de Google s'appliquent.

Découvrir nos outils